賃貸物件詳細
本町貸家戸建
更新日:2025.11.04


| 賃料 | 50,000円 |
|---|---|
| 住所 | 四万十市中村本町3丁目26番地 |
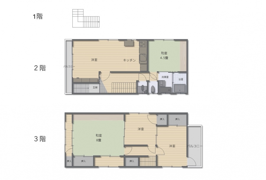
| 間取り | 4LDK |
| 建物階 | 3階建 |
| 駐車場 | 1台付 |
| 共益費 | 3000円 |
| 敷金 / 礼金 | 0ヶ月 / 0ヶ月 |
| 引き渡し日 | 即日 |
| 築年月 / 完成予定 | 1979年5月 (築46年) |
| 取引形態 | 仲介 |
| 設備 |
|
本町郵便局の近く
画像クリックで拡大します

間取り図面です
建物外観です
建物外観です
建物外観です
1階の入り口です
階段を上がっていきます
玄関ドアが見えてます
ピンポーン
失礼しまーす
ガラガラガラ
靴箱があります
あまり大きくはないですが…
階段や廊下があります
玄関内側の様子です
リビングへ
オープン
リビングです
備え付けの棚があります
バルコニーへ出ます
バルコニーです
バルコニー側からの室内です
キッチンです
キッチンラックがあります
中段はスライド、下段は収納
キッチンです
換気扇です
上側の収納です
上側の収納が多いですね
ワークトップが広いです
シングルレバーの混合水栓です
コンロはIHで3口です
下の収納も引き出しがいっぱいです
食器洗浄機です
シンク下の収納です
横の収納力もすごいです
廊下の奥です
右側のドアはトイレです
手前は和式トイレです
奥は洋式トイレです
温水洗浄便座です
左側のドアです
和室です
和室は4.5帖です
壁に棚があります
ガラス戸を開けると
洗面・脱衣室です
廊下側からっはアコーディオンカーテンを開けます
洗面・脱衣室です
洗面台です
ミラーが開き、棚があります
シャワーホースタイプです
下の収納です
室内の洗濯機置き場です
こちらは浴室のドアです
オープン
大理石風の浴室です
アーチの天井です
上の階に行きます
上がってすぐにドアがふたつ
廊下もあります
廊下の照明です
上がってすぐのドアの右側
洋室です
壁に棚が備え付けられえています
窓もあります
3階なので日当たりも良かったです
ドアがあります
バルコニーです
洗濯ものが干せます
収納もあります
ここからは隣の洋室へ
オープン
廊下から入ります
オープン
窓もあります
備え付けの棚もあります
収納もあります
3枚の襖からは隣の和室へ
チラリ…
廊下から和室に入るドアです
そのドアの前に廊下の収納があります
和室に入ります
8帖の和室です
濃い目の壁紙が和室を引き立てます
障子や襖にも囲まれています
素敵な空間ですね


障子があります
ちょっとした空間があります
窓もあります
襖は収納です
障子が4枚、迫力がありますね
窓があります
収納もあります
目の前が中村郵便局です
中村小学校までは240m
中村中学校は小学校の隣です
天神橋のアーケードまでは350m
高知県立中村高校・中村中学校までは400m
まちフジまでは1.1km
くすりのレデイはまちフジの隣にあります




街中に建つ3階建て。
タカラのシステムキッチンがお出迎えしてくれるキッチン。
駐車場も1台付いています。
内見してみませんか?